Туалет ТИП 22
Цена: Уточняйте
Код продукта: 437
При заказе изделия ссылайтесь на код продукта
Описание:
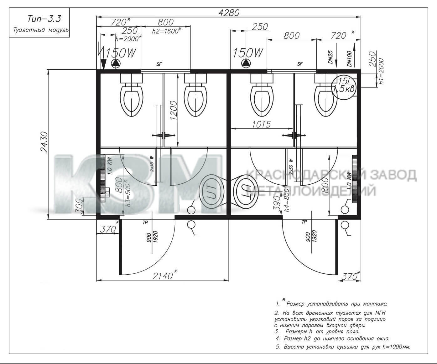
Данный туалетный модуль предназначен для установки в максимально компактных условиях.
Все действующие цуены указаны на нашем новом сайте tualet.biz
ОБРАЩАТЬСЯ В ОТДЕЛ ПРОДАЖ ПО ТЕЛЕФОНУ
8-988-245-92-95
Все действующие цуены указаны на нашем новом сайте tualet.biz
ОБРАЩАТЬСЯ В ОТДЕЛ ПРОДАЖ ПО ТЕЛЕФОНУ
8-988-245-92-95
Данный туалетный модуль предназначен для установки в максимально компактных условиях. Состоит из двух половинок мужской и женской, каждая из которых имеет по две кабинки. Оснащен четырьмя унитазами, двумя раковинами, бойлером, двумя конвекторами, двумя сушилками для рук.












